
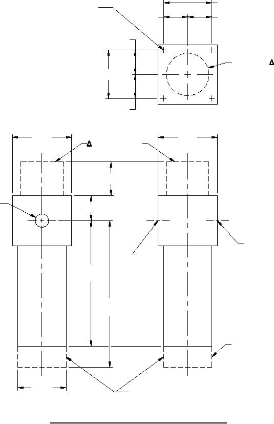
MIL-DTL-24402/1A
4.50±.03
DRILL .531±.015 DIA
THRU HOLE TYP
(2.25)
2.25±.03
4 PLACES
2.25±.03
LOCATE P
INDICATOR
4.50±.03
AND ALL
ACCESSORIES
WITHIN 2-1/2
RAD OF
CENTER
(2.25)
6.00
6.08
±.06
MAX
P INDICATOR
ENVELOPE
3.75 MAX
SAE J1926-20
1.56±.03
STRAIGHT
THD INLET
AND OUTLET
PORTS
OUTLET
PORT
INLET
PORT
14.80
MAX
17.00
MAX
USER SHALL
PROVIDE
CLEARANCE
FOR ELEMENT
REMOVAL
5.40
MAX
ELEMENT REMOVAL
CLEARANCE
FIGURE 1. Single-element (size B) filter housing outline dimensions.
4
For Parts Inquires submit RFQ to Parts Hangar, Inc.
© Copyright 2015 Integrated Publishing, Inc.
A Service Disabled Veteran Owned Small Business